Confronta Immobili

È possibile confrontare solo 4 proprietà
Confronta Reset
  • +39 (0)422 174 26 52
  • info@studiosanleonardo.com
Studio San Leonardo
  • Agenzia
  • Immobili
    • Vendita
    • Affitto
    • Ville in costruzione
    • Vendute
  • Home Lab
  • Affitto Brevi Periodi
  • Valuta immobile
  • Valorizza immobile
  • Contact
Log In / Register

Casa indipendente a Treviso nel primissimo fuori mura Venduto Case

Via Ugo Foscolo, Treviso, TV, Italia
  • m² 300
  • Locali 4
  • Camere 3
  • Bagni 1

Descrizione

Una Casa indipendente a Treviso nel primissimo fuori mura

Vuoi raggiungere il Centro Storico a piedi in cinque minuti?
Questa è la casa che stavate aspettando. La metratura generosa dell’immobile, la tipologia e la vicinanza al Centro sono gli elementi principali che valorizzano questa abitazione. Sviluppata su due piani completamente indipendenti tra loro, si presta per essere vissuta da una famiglia numerosa.

Attualmente il piano primo risulta essere abitazione, composta da cucina separata, soggiorno, tre camere ed un bagno, mentre il piano terra dispone di 132 mq accatastati come magazzino. Infissi sostituiti recentemente e piccoli interventi di manutenzione ordinaria.
Molteplici le sue destinazioni sfruttando il locale al piano terra: possibilità di poter ricavare l’ufficio per la propria attività, oppure poter avviare data la sua posizione, una piccola attività ricettiva come affitti turistici oppure un Bed & Breakfast oppure fare un’unica grande abitazione.

Possibilità di ricavare al piano terra zona giorno di ca 70mq con comodo ingresso/guardaroba, bagno, lavanderia e garage, mentre al piano superiore quattro camere matrimoniali, due bagni, un guardaroba. Ampia terrazza abitabile da 22mq. Giardino privato con plateatico.
Le planimetrie riportate nell’annuncio ed i suoi render interni ed esterni sono stati progettati a cura dell’arch. Nicola Crosato e vanno a rappresentare la potenzialità dell’immobile apportando delle modifiche rispetto allo stato reale, NON rappresentano dunque lo stato attuale dell’immobile.

Chiamaci ora per avere maggiori informazioni relative al progetto e costi di realizzazione potete contattarci ai seguenti recapiti telefonici: 0422-1742652 – 393.4268984 – 3478651423. Fisseremo insieme un appuntamento per darvi tutte le informazioni per una consegna chiavi in mano.
San Leonardo Studio Immobiliare – Via Sant’Agata 3 Treviso

 

Dettagli

  • Anno di costruzione: 1954
  • Stato di conservazione: Abitabile
  • Piano: Ingresso indipendente
  • Esposizione: Nord, Est, Sud, Ovest
  • Unità immobiliari: 1
  • Spese condominiali: Nessuna
  • Ascensore: No
  • Classe energetica: G
  • IPE: 325,60
  • Condizionatore: Climatizzazione
  • Riscaldamento: Autonomo
  • Posto auto: Interno
  • Garage: Privato
  • Magazzino / Cantina: Si

Caratteristiche

  • A due minuti a piedi dal Centro
  • Garage privato
  • Internet
  • Magazzino
  • Opportunità per affitti turistici
  • Possibilità di ricavare due unità indipendenti
  • Riscaldamento autonomo
  • Servizi primari immediati
  • Terrazza abitabile

San Leonardo Garantito

Recuperiamo la documentazione necessaria sin dal momento dell'incarico per poter garantire ai nostri clienti, venditori e acquirenti, una compravendita in sicurezza.

Accesso Atti Richiesta inoltrata
Atto di Provenienza Compravendita
Planimetria Catastale
In fase di aggiornamento
Attestato di Prestazione Energetica (APE)
In fase di certificazione
Spese Condominiali Nessuna
Ultimo Verbale Assemblea Condominiale Immobile non gestito da amministratore
Aspetti Urbanistici In fase di verifica tramite accesso atti
Piante di Progetto
Licenza/Concessione Edilizia
Agibilità/Abitabilità
Eventuali Autorizzazioni alla Vendita Piena Proprietà
Visura Catastale
Visura Ipotecaria

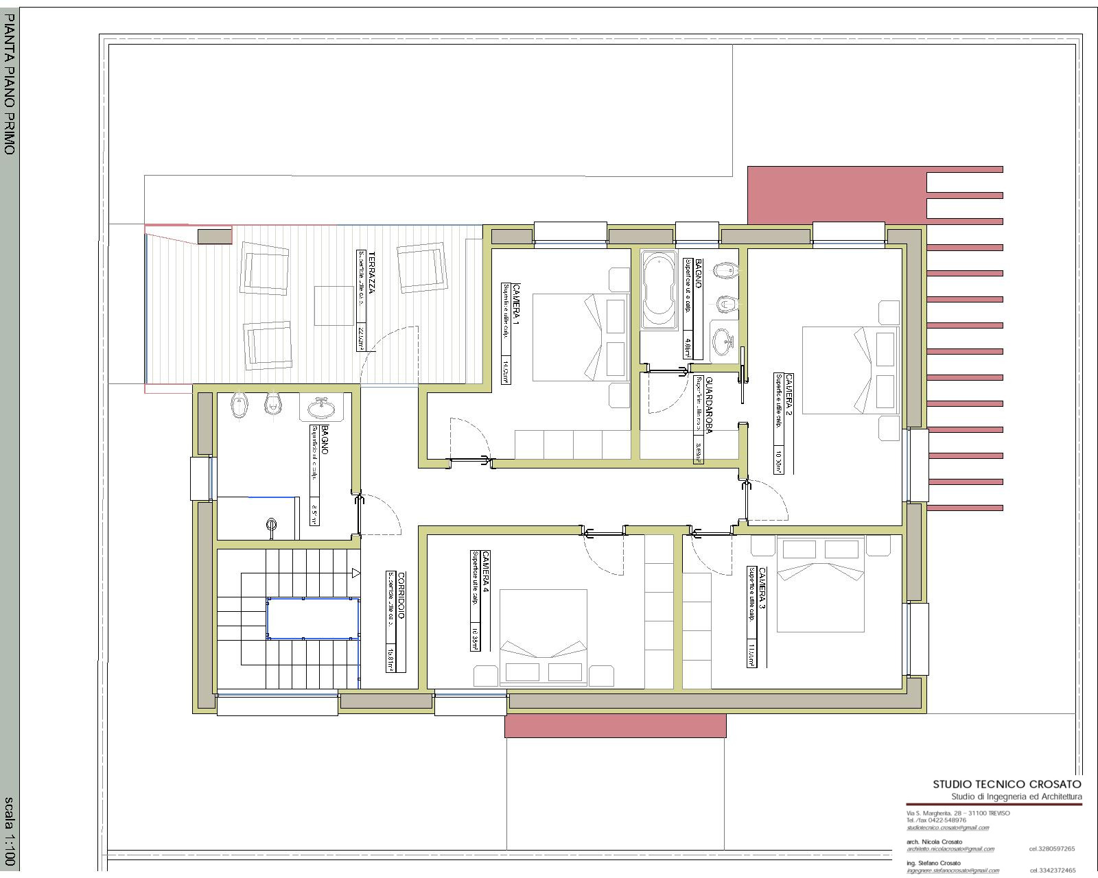
Planimetrie

Il piano terra 115 mq calpestabili m²

Splendida zona giorno di 70mq con ampia vetrata su plateatico esterno

Il piano primo 96 m²

Ben quattro matrimoniali… Ed una terrazza abitabile da 22 mq

Video

Luogo

Street View

Immobili Simili

Venduto

Appartamento bicamere, Treviso primissimo fuori mura

Vicolo San Bartolomeo, Treviso, TV, Italia Dettagli
  • m² 85
  • Locali 3
  • Camere 2
  • Bagni 1
Andrea De Cristofaro 4 anni fa
Venduto

Esclusivo appartamento al piano Attico

Via Lorenzo da Ponte, Treviso, TV, Italia Dettagli
  • m² 130
  • Locali 4
  • Camere 3
  • Bagni 3
Andrea De Cristofaro 6 anni fa
Venduto

TREVISO Centro Storico – Ampio appartamento bicamere con vista panoramica

Piazza Duomo, Treviso, TV, Italia Dettagli
  • m² 150
  • Locali 3
  • Camere 2
  • Bagni 2
Luigi Cervi 6 anni fa

Vuoi guadagnare da una casa senza venderla e senza vincoli?

Affittala a breve termine con noi!
Un sistema facile, remunerativo che inizia e finisce quando vuoi, senza impegno.
Contattaci e guadagna

Non svendere, Valorizza!

Crediamo così tanto nella valorizzazione che lo abbiamo evoluto al nostro metodo di vendita.
Meno visite, idee più chiare, valore maggiore e clienti più soddisfatti.
Scopri il nostro metodo

tavola disegno @ x

Ascoltiamo i vostri sogni e le vostre esigenze accompagnandovi nella scelta della vostra nuova casa.

Link utili

  • Guida all’immobile
  • Privacy Policy
  • Cookie Policy
  • Contact
  • Valuta il tuo immobile
  • Lavora con Noi

Contattaci

Via Zermanese 111
31100 , Treviso , TV
Tel 0422 174 26 52
E-Mail: info@studiosanleonardo.com

© Copyright 2024 Studio San Leonardo - Partita IVA 04917030266 - info@studiosanleonardo.com - Tel +39 0422 174 26 52
Cookie Policy | Privacy Policy | designed by MVSE
Gestisci Consenso Cookie
Utilizziamo i cookie per personalizzare e ottimizzare i contenuti che ti vengono mostrati, in modo da garantirti la migliore esperienza online. Facendo clic su "Accetta cookie", continueremo a proporti suggerimenti e offerte personalizzate sulla base delle tue preferenze. Se preferisci, puoi scegliere di continuare a utilizzare l'opzione "Solo funzionali". Tuttavia, il blocco di alcuni tipi di cookie può limitare il modo in cui possiamo offrirti contenuti personalizzati che potrebbero piacerti. Per ulteriori informazioni sui cookie e sul motivo per cui li utilizziamo, visita la nostra pagina dedicata.
Funzionale Sempre attivo
L'archiviazione tecnica o l'accesso sono strettamente necessari al fine legittimo di consentire l'uso di un servizio specifico esplicitamente richiesto dall'abbonato o dall'utente, o al solo scopo di effettuare la trasmissione di una comunicazione su una rete di comunicazione elettronica.
Preferenze
L'archiviazione tecnica o l'accesso sono necessari per lo scopo legittimo di memorizzare le preferenze che non sono richieste dall'abbonato o dall'utente.
Statistiche
L'archiviazione tecnica o l'accesso che viene utilizzato esclusivamente per scopi statistici. L'archiviazione tecnica o l'accesso che viene utilizzato esclusivamente per scopi statistici anonimi. Senza un mandato di comparizione, una conformità volontaria da parte del vostro Fornitore di Servizi Internet, o ulteriori registrazioni da parte di terzi, le informazioni memorizzate o recuperate per questo scopo da sole non possono di solito essere utilizzate per l'identificazione.
Marketing
L'archiviazione tecnica o l'accesso sono necessari per creare profili di utenti per inviare pubblicità, o per tracciare l'utente su un sito web o su diversi siti web per scopi di marketing simili.
  • Gestisci opzioni
  • Gestisci servizi
  • Gestisci {vendor_count} fornitori
  • Per saperne di più su questi scopi
Visualizza preferenze
  • {title}
  • {title}
  • {title}